图11-8给出了3种脱水法的泥渣层含水率示意图。机械压榨时,首先在过滤介质近旁形成低含水率层,然后此层逐渐向上增高,并在脱水结束时形成与压榨力相平衡的均质渣层。单独用电渗透脱水时,首先在上部电极的滤布近旁形成低含水率的渣层,然后逐渐向下传。但是厚渣层降低了电压,使下部电极近旁料浆的脱水变得困难。显然,将电渗透和压榨组合使用,便克服了各法单独使用的缺点。
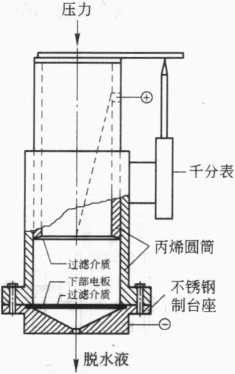
图11-9给出了电渗透与压榨组合的实验装置。活塞在压缩室中的移动量由千分表测出。在下部过滤介质的下面装有电极(称为下部电极)。在压榨活塞的底部也装有过滤介质,介质的上方也有电极(称为上部电极)。实验时先取下不锈钢底座,将浓稠的膨润土固液混合物倒入压缩室中,然后再装上底座并夹紧。接着,在活塞上方施加较小的机械压力,借以使试料成为半固体状。


![]()